Vai al contenuto
  • Home
  • Vendite
  • Affitti
  • Chi Siamo
  • Servizi
  • Blog
  • Contatti
Menu
  • Home
  • Vendite
  • Affitti
  • Chi Siamo
  • Servizi
  • Blog
  • Contatti

Attico in zona centrale con terrazzo e autorimessa

Bra

  • 100mq
  • 2 camere
  • 1 bagni

€ 210.000

In trattativa
Documenti
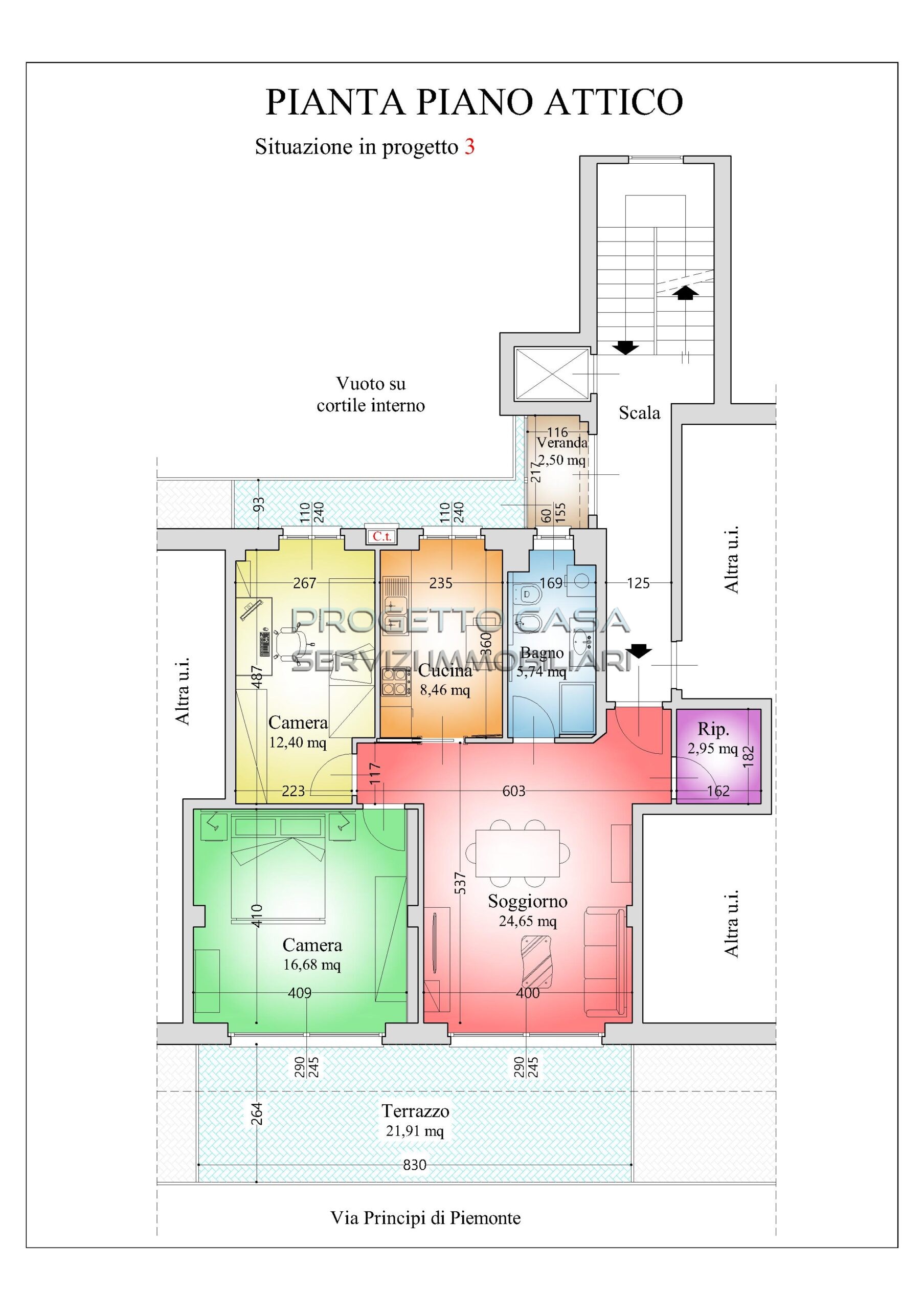
  • PLANIMETRIA DI PROGETTO 3
  • PLANIMETRIA DI PROGETTO 2
  • PLANIMETRIA DI PROGETTO 1
  • PLANIMETRIA STATO ATTUALE
  • Rif: V35
  • Prezzo: € 210.000
  • Superficie: 100mq
  • Anno di costruzione: 1960
  • Tipo di immobile: Medio
  • Locali: 3
  • Camere: 2
  • Bagni: 1
  • Piano: 4 (Attico)
  • Livelli: 1
  • Piani edificio: 4
  • Balconi: 1
  • Terrazzi: 1
  • Spese condominiali: 130
  • Riscaldamento: Autonomo, a Metano, A radiatori
  • Impianto aria condizionata: Assente

Caratteristiche

  • Non Arredato
  • Soffitta
  • Cantina
  • Cancello elettrico
  • Esposizione interna
  • Esposizione esterna
  • Ascensore

Dettagli

A Bra, in pieno centro storico, proponiamo in vendita attico sito al quarto ed ultimo piano di un condominio servito da ascensore.

L’appartamento è composto da ingresso living su soggiorno, cucinotto, ampio bagno, camera da letto matrimoniale, una seconda camera da letto e il ripostiglio.

L’appartamento gode di un ampio terrazzo, accessibile dal soggiorno e dalla camera matrimoniale, che si affaccia sulla rinomata via Principi, mentre dalla seconda camera e dal bagno si accede ad un balcone, dal quale è possibile godere di una vista meravigliosa sui tetti della città.

A completare la proprietà vi sono una soffitta, una cantina di generose dimensioni e un’autorimessa singola.

Il riscaldamento è autonomo.

In ottica di ristrutturazione l’appartamento si presta a diverse soluzioni: sarebbe infatti possibile creare una zona cucina con penisola collegata direttamente al soggiorno, in modo da poter godere del doppio affaccio e sfruttare al massimo gli spazi esterni (vedere planimetria di progetto 1); per chi desidera mantenere la zona notte separata è possibile creare un soggiorno open space con cucina ad angolo ed un disimpegno che consente l’accesso alle camere da letto e al bagno (vedere planimetria di progetto 2). Se si preferisce invece mantenere la cucina separata dal soggiorno è possibile invertire la posizione di cucina e bagno, spostando il muro tramezzo di separazione dei due ambienti, in modo da creare una cucina abitabile e un bagno di adeguate dimensioni (come indicato nella planimetria di progetto 3).

€ 210.000

Richiedi informazioni

Vuoi ricevere i nuovi annunci nella tua email?

Iscriviti alla Newsletter!

Progetto Casa

  • Via Umberto I, 128B
  • 12042 Bra (CN)
  • 0172 245923 - 351 5720951

Link utili

  • Privacy Policy
  • Cookie Policy
  • Privacy Tools
  • Sitemap

Seguici sui social!

Facebook Twitter Pinterest Instagram Linkedin Youtube
  • © Progetto Casa Servizi Immobiliari
  • P.IVA IT03958000048
  • Sito realizzato con Domyno Accelerator
  • Accedi
Utilizziamo i cookie
Utilizziamo i cookie per le funzionalità fondamentali del sito e per assicurarti la migliore esperienza. Il sito utilizza cookie di terze parti per statistiche anonime di utilizzo. Se desideri sapere di più sui cookie che utilizziamo e su come gestirli, puoi accedere alla Cookie Policy

ACCETTA TUTTIRIFIUTASCEGLICHIUDI
Panoramica sulla privacy

This website uses cookies to improve your experience while you navigate through the website. Out of these cookies, the cookies that are categorized as necessary are stored on your browser as they are essential for the working of basic functionalities of the website. We also use third-party cookies that help us analyze and understand how you use this website. These cookies will be stored in your browser only with your consent. You also have the option to opt-out of these cookies. But opting out of some of these cookies may have an effect on your browsing experience.

Tecnici
Sempre abilitato
I cookie tecnici sono assolutamente indispensabili al sito web per funzionare correttamente. Questi cookie assicurano il funzionamento e la sicurezza di base del sito in maniera anonima. Tra i cookie tecnici vi possono essere anche quelli di performace e analitici di prima parte che non memorizzano dati personali dell'utente.
CookieDurataDescrizione
cookielawinfo-checbox-analytics11 monthsQuesto cookie è impostato dal plug-in di consenso sui cookie GDPR. Il cookie viene utilizzato per memorizzare il consenso dell'utente per i cookie nella categoria "Analytics".
cookielawinfo-checbox-functional11 monthsQuesto cookie è impostato dal plug-in di consenso sui cookie GDPR. Il cookie viene utilizzato per memorizzare il consenso dell'utente per i cookie nella categoria "Funzionali".
cookielawinfo-checbox-others11 monthsQuesto cookie è impostato dal plug-in di consenso sui cookie GDPR. Il cookie viene utilizzato per memorizzare il consenso dell'utente per i cookie nella categoria "Altro.
cookielawinfo-checkbox-advertisement1 yearIl cookie è impostato dal consenso cookie GDPR per registrare il consenso dell'utente per i cookie nella categoria "Pubblicità".
cookielawinfo-checkbox-necessary11 monthsQuesto cookie è impostato dal plug-in di consenso sui cookie GDPR. Il cookie viene utilizzato per memorizzare il consenso dell'utente per i cookie nella categoria "Necessari".
cookielawinfo-checkbox-performance11 monthsQuesto cookie è impostato dal plug-in di consenso sui cookie GDPR. Il cookie viene utilizzato per memorizzare il consenso dell'utente per i cookie nella categoria "Performance".
tc_mtm_vars1 yearUtilizzato dal sistema per individuare le campagne pubblicitarie di origine.
tc_mtm_vars_last1 yearUtilizzato dal sistema per individuare l'ultima campagna pubblicitaria di origine.
viewed_cookie_policy11 monthsIl cookie è impostato dal plug-in GDPR Cookie Consent e viene utilizzato per memorizzare se l'utente ha acconsentito o meno all'uso dei cookie. Non memorizza alcun dato personale.
_GRECAPTCHA5 months 27 daysQuesto cookie è impostato da Google. Oltre a determinati cookie standard di Google, reCAPTCHA imposta un cookie necessario (_GRECAPTCHA) quando viene eseguito allo scopo di fornire la sua analisi dei rischi.
_pk_id.*.*1 MonthCookie di prima parte per statistiche di utilizzo che raccoglie dati anonimi e in forma aggregata per statistiche riservate agli amministratori del sito
_pk_ses.*.*1 HourCookie di prima parte per statistiche di utilizzo che raccoglie dati anonimi e in forma aggregata per statistiche riservate agli amministratori del sito
__cfduid1 monthIl cookie viene utilizzato dai servizi cdn come CloudFare per identificare i singoli client dietro un indirizzo IP condiviso e applicare le impostazioni di sicurezza su base client. Non corrisponde a nessun ID utente nell'applicazione Web e non memorizza alcuna informazione di identificazione personale.
Funzionali
I cookie Funzionali vengono usati per fornire funzionalità aggiuntive per il sito web come la condivisione dei contenuti nei social, la raccolta di feedback e altre funzionalità di terze parti.
Performance
I cookie di Performance vengono utilizzati per analizzare gli indici di prestazione del sito e ci aiutano a migliorare l’esperienza degli utenti.
Analitici
I cookie Analitici vengono utilizzati per capire come gli utenti interagiscono con il sito. Aiutano a fornire informazioni sul numero di visitatori, frequenza di rimbalzo, origine del traffico, ecc.
Pubblicitari
I cookie pubblicitari vengono utilizzati per fornire agli utenti pubblicità e campagne marketing rilevanti per loro. Questi cookie tracciano gli utenti attraverso più siti per raccogliere informazioni e mostrare pubblicità personalizzate.
Altri
Gli Altri cookie sono tutti quelli che non rientrano nelle altre categorie o che devono essere analizzati per essere categorizzati.
CookieDurataDescrizione
JihbyfZQqjPaYgk1 dayNessuna descrizione
xbFVMQ_pHuGvqUZ1 dayNessuna descrizione
Manage consent